Vacant Land in Putnam County
| MLS Number | 971689 |
|---|---|
| Address | Hillside Road, Carmel, NY 10512 show map |
| Price | $45,500 show mortgage calculator |
| Acres | 0.000010330578512397 |
| Elementary School | Kent Elementary |
| Jr High-Middle School | George Fischer Middle School |
| High School | Carmel High School |
| Land Use Permitted | |
| Use / Zoning | |
| Zoning | R10 |
| Utilities Inc. | None |
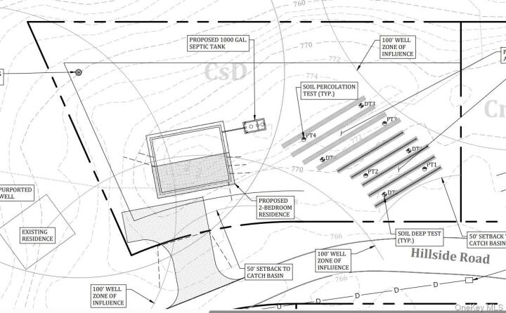
Opportunity awaits on this raw, uncleared Residential Parcel located in an already established neighborhood. Enjoy convenient proximity to major commuter routes including I-84, Route 52 and Route 6, as well as shopping, schools, library, and train service. A draft Feasibility Study has been completed and is provided for informational purposes. The property is not Board of Health approved; purchasers seeking approvals must conduct their own due diligence, as well as conferring w/the Building Dept. to help determine what can and cannot be built on this lot.
© 2022 OneKey Multiple Listing Service, Inc., All Rights Reserved. The data relating to real estate for sale or lease on this website comes in part from OneKey MLS. Real estate listings held by brokerage firms other then CS Realty Relocation Services are marked with a OneKey MLS Logo. The information appearing herein has not been verified by the OneKey Multiple Listing Service, Inc. or by the Hudson Gateway Association of Realtors, Inc. or by any individual(s) who may be affiliated with said entities, all of whom hereby collectively and severally disclaim any and all responsibility for the accuracy of the information appearing at this web site, at any time or from time to time. All such information should be independently verified by the recipient of such data. This data is not warranted for any purpose.


