Vacant Land in Bronx County
| MLS Number | 952663 |
|---|---|
| Address | 3169 Wissman Avenue, Bronx, NY 10465 show map |
| Price | $299,000 show mortgage calculator |
| Acres | 0.057644628099174 |
| Elementary School | Bronx Delta School |
| Jr High-Middle School | Urban Institute Of Mathematics |
| High School | Contact Agent |
| Land Use Permitted | |
| Use / Zoning | |
| Zoning | |
| Utilities Inc. |
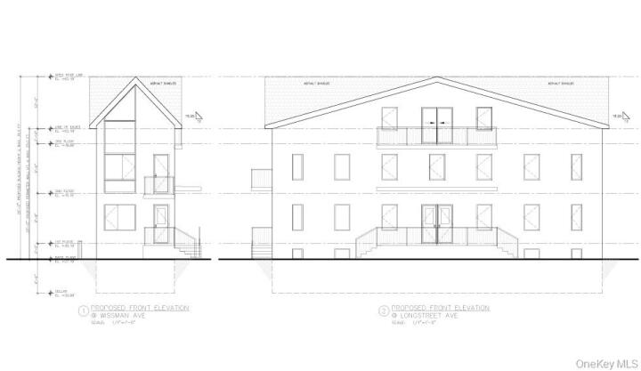
Rare opportunity to purchase a buildable lot with approved architectural plans in place. Skip months of planning and approvals and move directly toward construction. Plans are designed for a spacious 2-family property. This home offers 2 duplex units. with a total 4 bedrooms and 6 bathrooms plus an extra study room on the third floor. Total 3795 sq ft finished area residence. Excellent location and Perfect for builders or buyers seeking a calmer living area. Call today to schedule your private viewing.
© 2022 OneKey Multiple Listing Service, Inc., All Rights Reserved. The data relating to real estate for sale or lease on this website comes in part from OneKey MLS. Real estate listings held by brokerage firms other then CS Realty Relocation Services are marked with a OneKey MLS Logo. The information appearing herein has not been verified by the OneKey Multiple Listing Service, Inc. or by the Hudson Gateway Association of Realtors, Inc. or by any individual(s) who may be affiliated with said entities, all of whom hereby collectively and severally disclaim any and all responsibility for the accuracy of the information appearing at this web site, at any time or from time to time. All such information should be independently verified by the recipient of such data. This data is not warranted for any purpose.


