Commercial in Sullivan County
| MLS Number | 920338 |
|---|---|
| Address | 86 Jefferson Street, Monticello, NY 12701 show map |
| Price | $2,950,000 show mortgage calculator |
| Acres | 0 |
| Year Built | 0 |
| Est. Sq. Footage | 0 |
| Zoning | BLI |
| Current Uses | |
| Permitted Uses |
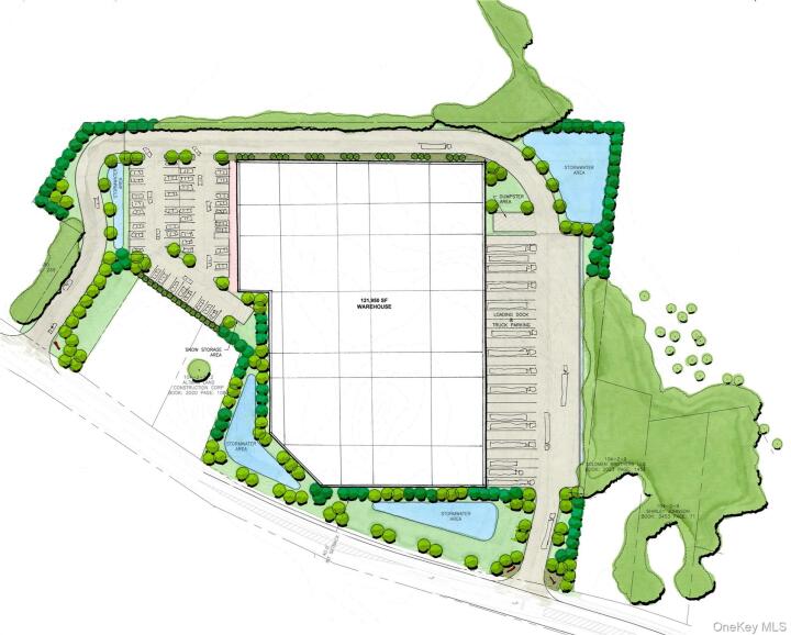
This 6.9 acre vacant land site is soon to be approved for a 121,000 square foot industrial building. Ideal for warehouse, distribution, refrigerated food warehouse, 3rd party logistics and more. Will be sold with municipal approvals in place. Municipal Water and Sewer Available! Located 1/4 mile from Exit 104 of nY17/I-86 in the Village of Monticello, Sullivan County. The site is already cleared and partially graded. Inexpensive site work conditions. Building details: approximately 121,000 sqft to be built with up to 35' ceilings. 27 truck parking and 61 car parking. Sullivan County is Open for Business! Parcels included in the sale: 104-2-Lots 10, 11.2, 11.3, and portion of lot 13. Located in the BLI (Light Industry) zone.
© 2022 OneKey Multiple Listing Service, Inc., All Rights Reserved. The data relating to real estate for sale or lease on this website comes in part from OneKey MLS. Real estate listings held by brokerage firms other then CS Realty Relocation Services are marked with a OneKey MLS Logo. The information appearing herein has not been verified by the OneKey Multiple Listing Service, Inc. or by the Hudson Gateway Association of Realtors, Inc. or by any individual(s) who may be affiliated with said entities, all of whom hereby collectively and severally disclaim any and all responsibility for the accuracy of the information appearing at this web site, at any time or from time to time. All such information should be independently verified by the recipient of such data. This data is not warranted for any purpose.


